• Home
  • Properties
    • Barcelona
    • Mallorca
    • En Silencio
  • NEWS & PRESS
  • Areas
    • Barcelona
    • Mallorca
  • Social Media
  • About Us
  • Contact
Favourites
  • EN
  • SE
  • ES
  • FR
  • DE
  • RU
Larsson Estate Agent in Barcelona

Apartment for sale Barcelona Gràcia

Modern 2 room apartment with 3 terraces for sale next to Paseo de Sant Joan !

  • Price: 0€
  • Bedrooms: 2
  • Bathrooms: 1
  • Type: Apartment
  • Build: 76m2
  • Plot: 0m2
  • Pool: No
  • EPC: D
  • REF: KJA11003
    • ITE Aptitud
    • Terrace: 25
    • Apartment Floor Nº: 3
    • Floor Levels: 5
    • Lift

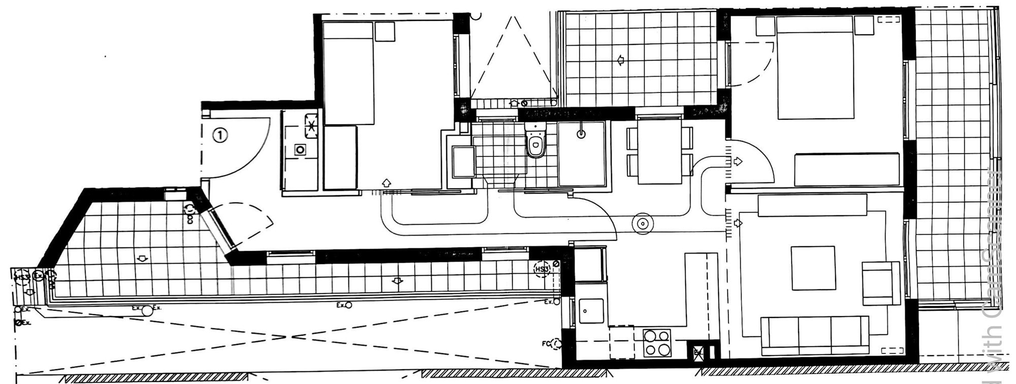
Welcome to this modern apartment of 62 m2 built area (52 m2 living ) with fantastic sunlight that offers 2 bedrooms, 1 bathroom, a big balcony and 2 additional terraces with a total 25 m2.
It also has aircondition, heat and cold, video intercom and the community has a practical solar panelsystem on the rooftop.

Located next to the lovely Paseo de Sant Joan on the border between Eixample Dreta, Vila de Gracia and Camp Grassot i Gracia Nova. A perfect location with the charming squares of Vila de Gracia around the corner, walking distance to Paseo de Gracia and the citycenter or in the other direction la Sagrada Familia. On top of that you have the market across the road with fresh foods on a daily bases and the metro or buses just two blocks away. A calm but well located area.

This apartment is unique because it is part of two floors that was built on top of a turn of the century building in 2015, with an elevator of course. That means you have the best of different decades of architecture. You can enjoy a beautiful facade and entrance of the building but you live in a modern apartment only 6 years old. Practical and comfortable space for a small family or for 2 people and their guests. Master bedroom and the living room offers access directly to the 8 m2 big balcony facing the spacious and calm inner courtyard. There is one more terrace with access from the bedroom and a third one with access from the entrance, all with plenty of space for outdoor furniture or storage. The apartment offers a lovely morning to noon sun and the back terrace in the afternoon.

Don't hesitate to contact us at Larsson Estate for more information and to book your visit !

Information about neighborhood Gràcia
Agent
Kerstin Johansson
694477079
kerstin.johansson@larssonestate.com
Contact Agent
Larsson Estate Larsson Estate Larsson Estate Larsson Estate Larsson Estate Larsson Estate Larsson Estate Larsson Estate Larsson Estate Larsson Estate Larsson Estate Larsson Estate Larsson Estate
Larsson Estate Agent in Barcelona
Larsson Estate Agent in Barcelona
  • Privacy Policy
  • (+34) 932 201 444
  • info@larssonestate.com
  • © Larsson Estate
Popular Searches
  • Apartment for sale Barcelona
  • Apartment for sale Eixample
  • Apartment for sale Born
  • Apartment for sale Gótic
  • Apartment for sale Raval
  • Apartment for sale Barceloneta
  • Apartment for sale Poble Sec
  • Apartment for sale Poblenou
  • Apartment for sale Zona Alta
  • Apartment for sale Sants
  • Apartment for sale Diagonal Mar
  • Apartment for sale Sant Martí
  • Apartment for sale Badalona
  • House for sale Barcelona
  • House for sale Sant Cugat
  • House for sale Maresme
  • House for sale Sant Andreu de Llavaneres
  • House for sale Alella
  • House for sale Sant Vicenç de Montalt
  • House for sale Premia de Mar
  • House for sale Premia de Dalt
  • House for sale Caldes d’Estrac
  • House for sale Costa Brava
  • House for sale Emporda
  • Apartment for sale Caldes d’Estrac
  • Apartment for sale Sitges
  • 5 reasons to buy an apartment in Barcelona
  • Real estate agency Barcelona
  • International real estate
  • Real Estate Agent Barcelona
  • Sell property Barcelona
  • Real Estate Barcelona
  • Pisos en Venta Zona Alta
  • Inmobiliaria Boutique Barcelona
  • Inmobiliaria Zona Alta
  • Property for sale Maresme Barcelona
  • Apartments for sale El Born Barcelona
  • Property for sale Sitges Barcelona
  • Property for sale Barcelona
  • Inmobiliaria Sant Gervasi
  • Svensk Mäklare Barcelona
  • Mäklare Barcelona
  • Pisos en Venta Sant Gervasi
  • Buy Apartment for sale in Barcelona
  • Köpa Bostad Barcelona
  • Köpa lägenhet Barcelona
  • Inmobiliaria Boutique Mallorca
Powered by UltraIT.net
Larsson Estate Agent in Barcelona